 |
|
 |
|
Torre dei Corsari
Ausblicke: Ihr Blick von der Dachterrasse...
-
Erholung pur
-
Dämmerung
-
Satte Farben
-
Sonnenuntergang
-
Weiter Blick
Der Garten
Mediterrane Bepflanzung: Rund um das Haus ist ein kleiner Garten angelegt...
-
Palmen und Wandelröschen...
-
Frische Datteln...
-
...und Bananen
-
Natur pur!
Ihr Ferienhaus von außen
Kaum zu sehen: Von der Straße ist das Haus kaum zu sehen...
Ihr Ferienhaus von innen
Wohlfühlen auf 60 m²: Offener Kamin, Klimaanlage, 2 Badezimmer, 2 Schlafzimmer und vieles mehr
-
Wohnzimmer
-
offener Kamin
-
Badezimmer 1
-
Badezimmer 2
-
Schlafzimmer 1
-
Küche
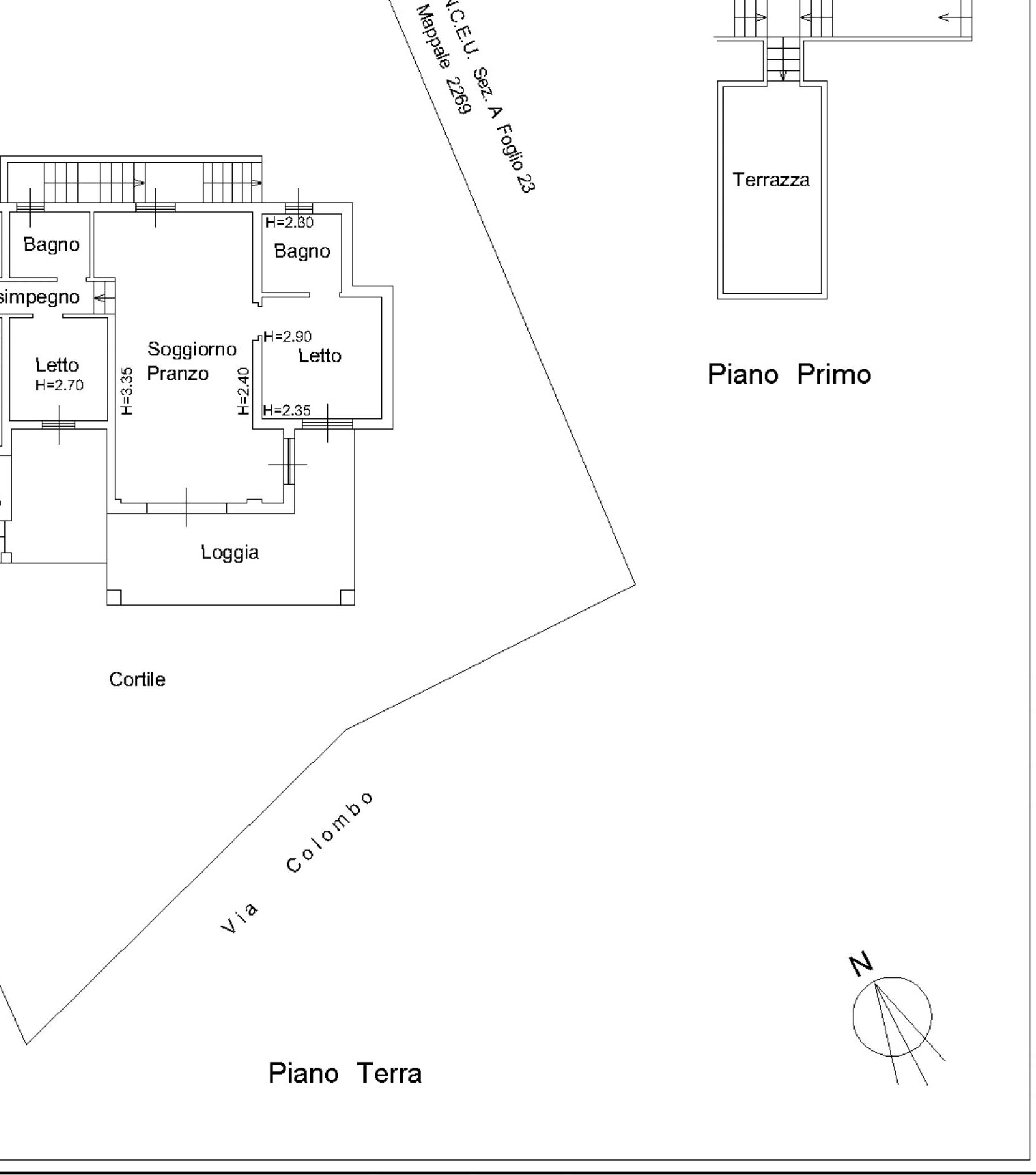
Aufteilung
Das Haus verfügt über ein Schlafzimmer mit Doppelbett (Letto), 2 Schlafgelegenheiten (Letto) in einem kleineren Zimmer,
2 Badezimmer (Bagno) und einem großen Wohnzimmer mit offener Küche und Kamin (Soggiorno Pranzo). Um das Haus herum finden Sie zahlreiche
Terrassen teils überdacht (Loggia) und von der Dachterasse (Terrazza) haben Sie einen herrlichen Blick über die Costa Verde.
|
Wetter: Im Durchschnitt scheint an ca. 300 Tagen im Jahr die Sonne auf Sardinien. Im Sommer kann es schon mal fast 40 Grad heiß werden, aber an
den meisten Tagen ab April erreicht das Thermometer angenehme 20 bis 25 Grad und mehr bis in den November hinein.
Die Wassertemperatur steigt in den Sommermonaten auf bis zu 26 Grad. Auch in den Monaten Mai, Juni, September und Oktober kann man im Meer
baden gehen und einige Runden schwimmen oder schnorcheln.
Essen: In Torre dei Corsari gibt es einige Restaurants und Pizzerien. Hier ist für jeden Geschmack etwas dabei. Aufgrund der voll ausgestatteten
Küche können Sie aber auch selbst kochen. Auf der unteren Terrasse ist ein großer Grill - wie wäre es mit einem BBQ?
Ausflug-Tipp: Wenn das Wetter mal für den Strand nicht schön genug ist: Wie wäre es mit einem Ausflug nach Tharros (antike Stadt) oder nach Su Nuraxi (Nuraghe)?
|
|
 |
|
 |
|